Mẫu Biệt Thự Vườn Mái Thái 1 Tầng Tân Cổ Điển: Đẳng Cấp Và Tiện Nghi
Trong xu hướng kiến trúc hiện nay, mẫu biệt thự vườn mái thái 1 tầng tân cổ điển đang trở thành lựa chọn hàng đầu cho những gia chủ sở hữu quỹ đất rộng, yêu thích không gian sống xanh và vẻ đẹp vượt thời gian. Sự kết hợp hoàn hảo giữa những đường nét phào chỉ tinh tế và hệ mái Thái cao ráo không chỉ tạo nên diện mạo sang trọng mà còn tối ưu hóa công năng sử dụng.
1. Phối Cảnh Kiến Trúc: Vẻ Đẹp Sang Trọng Từ Cái Nhìn Đầu Tiên
Công trình gây ấn tượng mạnh với phong cách Tân cổ điển (Neoclassical) được lược bỏ các chi tiết rườm rà, tập trung vào sự cân đối và các điểm nhấn tinh mỹ:
-
Hệ mái Thái giật cấp: Với tông màu đỏ truyền thống nổi bật trên nền sơn trắng sứ, hệ mái Thái không chỉ giúp thoát nước tốt, chống nóng hiệu quả mà còn tạo độ cao ráo, thanh thoát cho ngôi nhà.
-
Hệ cột trụ bề thế: Mặt tiền sử dụng hệ cột tròn được trang trí bằng các đường gờ chéo độc đáo, kết hợp cùng các bức phù điêu chạm khắc tinh xảo ở đầu cột, mang lại cảm giác vững chãi nhưng vẫn mềm mại.
-
Cửa vòm đặc trưng: Các ô cửa sổ kính lớn hình vòm không chỉ là điểm nhấn kiến trúc đặc trưng của phong cách cổ điển châu Âu mà còn giúp đón ánh sáng tự nhiên tối đa vào không gian nội thất.
-
Không gian xanh: Khoảng sân vườn rộng rãi bao quanh được lát gạch sạch sẽ, điểm xuyết các tiểu cảnh xanh mát, tạo nên một "resort tại gia" đúng nghĩa.
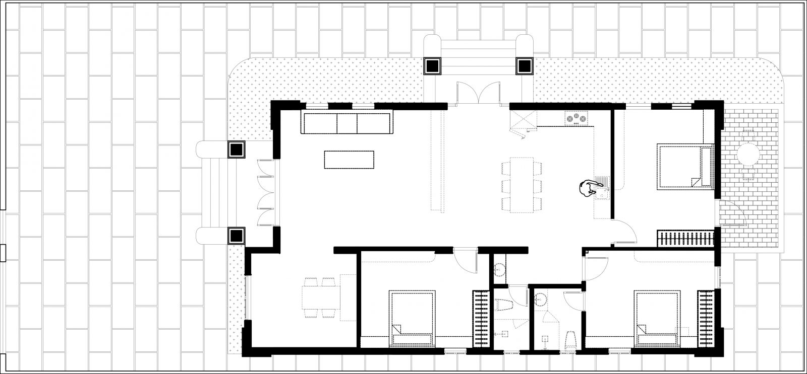
2. Giải Pháp Mặt Bằng Công Năng: Tối Ưu Và Khoa Học
Ngôi nhà được bố trí vô cùng hợp lý, đảm bảo sự riêng tư cho từng thành viên nhưng vẫn giữ được sự kết nối chung:
-
Phòng khách (Living Room): Nằm ngay sau sảnh chính, không gian rộng rãi và thoáng đãng, là nơi đón tiếp khách và thể hiện đẳng cấp của gia chủ.
-
Phòng bếp & Bàn ăn: Được thiết kế theo không gian mở, liên thông với phòng khách tạo cảm giác rộng rãi. Khu vực bếp có cửa phụ dẫn ra sân sau, giúp lưu thông không khí và tránh ám mùi thức ăn.
-
Hệ thống 03 Phòng ngủ:
-
01 Phòng ngủ Master: Có diện tích lớn nhất, tích hợp nhà vệ sinh khép kín, đảm bảo sự tiện nghi tuyệt đối.
-
02 Phòng ngủ phụ: Được bố trí liền kề, gần với khu vực vệ sinh chung, phù hợp cho con cái hoặc khách nghỉ lại.
-
-
Khu vực chức năng khác: Nhà vệ sinh chung được đặt vị trí kín đáo nhưng thuận tiện đi lại. Ngoài ra, ngôi nhà còn có khu vực thờ cúng được bố trí trang nghiêm.
3. Tại Sao Nên Lựa Chọn Mẫu Nhà Này?
-
Tính thẩm mỹ cao: Sự giao thoa giữa nét đẹp truyền thống và hiện đại giúp công trình luôn giữ được giá trị theo năm tháng.
-
Không gian sống gần gũi thiên nhiên: Thiết kế 1 tầng giúp mọi phòng chức năng đều có tầm nhìn ra sân vườn, mang lại cảm giác thư thái, yên bình.
Mặt đứng chính
Góc nhìn nghiêng
Mời tham khảo nhiều Nhà mái thái 1 tầng khác

