T HOUSE – NHÀ CẤP 4 HIỆN ĐẠI
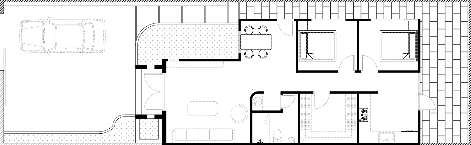
Một ngôi nhà cấp 4 có sân vườn rộng rãi, bố trí khoa học và tối ưu hóa tiện nghi sử dụng. Không gian được phân tách rõ ràng thành khu sinh hoạt chung – khu riêng tư – sân ngoài trời, đảm bảo sự hài hòa giữa công năng và thẩm mỹ.

Thiết kế cảnh quan nhà cấp 4
-
Lối đi sân vườn lát gạch bê tông xen cỏ tự nhiên.
Bồn cây đá xếp tầng giúp mặt tiền sinh động và sang trọng.
Phòng khách nhà cấp 4 rộng thoáng
Tiến vào bên trong là phòng khách, chiếm diện tích lớn nhất của ngôi nhà.
-
Không gian mở, kết nối trực tiếp với bếp và khu ăn.
-
Bộ sofa được đặt ở trung tâm, đối diện là khoảng tường có thể bố trí kệ TV.
Nhờ cửa lớn ở mặt tiền, ánh sáng tự nhiên tràn ngập không gian chính.
Hai phòng ngủ cạnh nhau
Bên phải mặt bằng là hai phòng ngủ, được bố trí đối xứng qua một hành lang chung:
-
Cả hai đều có cửa sổ lấy sáng.
-
Không gian đủ để kê giường, tủ quần áo và bàn làm việc nhỏ.
-
Bố trí này giúp:
-
Tập trung khu vực nghỉ ngơi thành một khối yên tĩnh.
Thuận tiện cho gia đình có trẻ nhỏ hoặc người lớn tuổi.
Phòng thay đồ & khu vệ sinh
Ngay giữa hai phòng ngủ và khu bếp là phòng thay đồ, có hệ tủ lớn chạy dọc hai bên — rất tiện dụng cho gia chủ cần không gian lưu trữ nhiều.
Khu vệ sinh được thiết kế tách biệt các không gian chức năng khác nhau
Phối cảnh kiến trúc công trình




