Mẫu Nhà Cấp 4 Mái Nhật 8x18m: Không Gian Sống Sang Trọng Với 3 Phòng Ngủ
Trong những năm gần đây, mẫu nhà cấp 4 mái Nhật đã trở thành sự lựa chọn hàng đầu cho các gia đình Việt. Không chỉ sở hữu vẻ ngoài thanh lịch, kiểu kiến trúc này còn cực kỳ phù hợp với khí hậu nóng ẩm tại Việt Nam. Hôm nay, chúng tôi xin giới thiệu đến bạn mẫu thiết kế nhà cấp 4 kích thước 8m x 18m đầy đủ tiện nghi với 3 phòng ngủ và 1 phòng thờ trang nghiêm.
1. Thông tin chung về công trình
-
Diện tích xây dựng: 144m2 (8m x 18m).
-
Phong cách kiến trúc: Hiện đại pha lẫn tân cổ điển nhẹ nhàng.
-
Loại mái: Mái Nhật xanh ghi sang trọng.
- Công năng: Phòng khách, phòng bếp + ăn, 3 phòng ngủ, 1 phòng thờ, 2 WC.
Phối cảnh mặt đứng chính
2. Phối cảnh ngoại thất ấn tượng
Nhìn vào mặt tiền của căn nhà, điểm thu hút đầu tiên chính là hệ mái Nhật với độ dốc vừa phải, giúp thoát nước mưa nhanh và tản nhiệt tốt.
-
Tông màu chủ đạo: Sự kết hợp giữa màu trắng tinh khôi và các mảng tường xanh ghi đậm tạo nên sự tương phản mạnh mẽ nhưng vẫn đầy tinh tế.
-
Hệ cột trụ: Hai cột trụ vuông vững chãi ở sảnh chính được ốp đá trang trí, mang lại cảm giác bề thế cho ngôi nhà.
-
Hệ thống cửa: Cửa chính và cửa sổ sử dụng khung nhôm Xingfa cao cấp kết hợp kính cường lực, giúp tối ưu hóa ánh sáng tự nhiên cho không gian bên trong.
-
Cảnh quan: Khoảng sân trước rộng rãi được lát gạch sạch sẽ, kết hợp cùng các bồn hoa nhỏ sát chân tường giúp căn nhà trở nên gần gũi với thiên nhiên hơn.
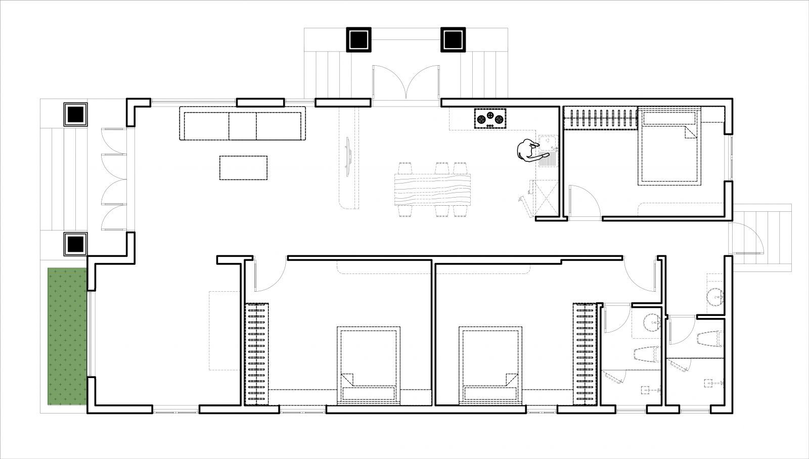
3. Bản vẽ công năng chi tiết (8x18m)
Với chiều sâu 18m, không gian bên trong được phân chia một cách khoa học để đảm bảo tính riêng tư và sự thông thoáng:
-
Phòng khách: Nằm ngay sau sảnh chính, là không gian rộng nhất để đón tiếp khách.
-
Phòng thờ: Được đặt ở vị trí trang trọng, tách biệt để đảm bảo sự yên tĩnh và tôn nghiêm.
-
3 Phòng ngủ: Được bố trí xen kẽ, đảm bảo mỗi phòng đều có cửa sổ đón gió. Trong đó có 1 phòng ngủ Master có WC khép kín.
4. Tại sao mẫu nhà 8x18m này lại được ưa chuộng?
-
Chi phí xây dựng hợp lý: Phù hợp với ngân sách của nhiều gia đình trẻ và ở nông thôn.
-
Tính thẩm mỹ cao: Kiến trúc mái Nhật không bao giờ lỗi mốt, mang lại vẻ đẹp sang trọng và bền vững.
-
Tối ưu diện tích: Kích thước 8m ngang cho phép bố trí các phòng chức năng rất thoải mái, không bị bí bách.


Phối cảnh kiến trúc công trình
Bạn đang tìm kiếm bản vẽ chi tiết hoặc cần tư vấn thi công mẫu nhà 8x18m này? Hãy liên hệ ngay với đội ngũ kiến trúc sư để nhận tư vấn và báo giá chính xác nhất!




